Používame cookies

Súbory cookie a ďalšie technológie sledovania používame na zlepšenie vášho zážitku z prehliadania našich webových stránok, na to, aby sme vám zobrazovali prispôsobený obsah a cielené reklamy, na analýzu návštevnosti našich webových stránok a na pochopenie toho, odkiaľ naši návštevníci prichádzajú. Viac info

 

ID-3708 Rodinný dom na predaj - Veľké Kapušany

Interné ID: 3708
Obec: Veľké Kapušany
Okres: Michalovce
Kraj: Košický kraj
Druh: Domy
Typ: Predaj
Typ domu: Rodinný dom
89 900 €

Popis nehnuteľnosti

ID:3708
Ponúkame na predaj rodinný dom nachádzajúci sa v meste Veľké Kapušany na ulici Staničná:

  • dom bol až donedávna riadne obývaný a je v zachovalom pôvodnom stave, 
  • novému majiteľovi ponúka ideálnu príležitosť prispôsobiť si bývanie presne podľa vlastného vkusu, potrieb,
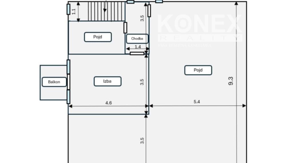
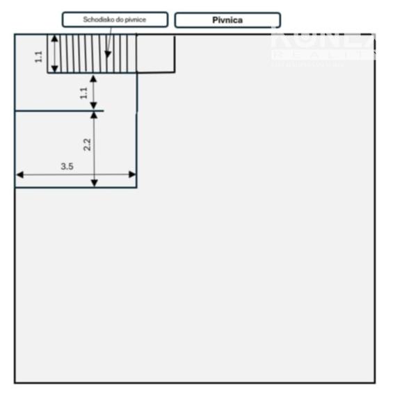
  • je čiastočne podpivničený a dispozične pozostáva z kuchyne, kúpeľne a troch izieb.
  • súčasťou domu je pivnica a k dispozícii je aj povala, ktorá poskytuje ďalší úložný priestor, 
  • dom stojí na pozemku s celkovou výmerou 1067 m², pričom zastavaná plocha domu je 100 m2, 
  • na pozemku sa nachádzajú aj hospodárske budovy a garáž, ktoré ponúkajú ďalšie možnosti využitia – napríklad na skladovanie, dielňu alebo drobné hospodárstvo, 
  • dom je napojený na všetky základné inžinierske siete, a to elektrinu, plyn a vodu, 
  • odpad je riešený formou žumpy, vykurovanie je zabezpečené plynovými gamatkami, 
  • lokalita ponúka dobrú dostupnosť do centra mesta a kompletnú občiansku vybavenosť.

Zabezpečíme Vám kompletný servis pri vybavení hypotekárneho úveru – bezplatne, rýchlo a výhodne.

CENA: 89.900 ,-EUR
MAKLÉR: 0902 184 003
INFOLINKA: 0918 883 321

**Uvedené informácie majú informatívny charakter, vychádzajú z údajov poskytnutých vlastníkom a nemusia byť úplné alebo presné. Pre overenie rozhodujúcich skutočností odporúčame osobnú obhliadku. Text inzerátu nie je použiteľný na právne účely.
 

Vlastnosti

Status:
aktívne

Informatívna úverová kalkulačka

Pozrieť na mape

Radi Vám poradíme

Podobné nehnuteľnosti